houston

PROGRESS REPORT AND BREAK GROUND Q4 2025 TARGET

Exciting progress has been made on XSpace Houston, and the executive group would like to share a status update directly from the General Partnership. The project is on track to break ground in Q4 2025. The team's output and execution in the background support this project’s trajectory as a big success.

PERMIT

June 2024 marked the project's permit approval for both site and building. The team is currently mobilizing resources in parallel with our project in The Woodlands with Howard Hughes.

DESIGN & CONSTRUCTION

The team has produced 100% designs, and the construction contractors are returning final offers to decide which GMP bid is best. The team decided to wait until the end of summer to execute the GMP to maximize the speed and quality of the build.

Moreover, considering the community's recent storm and power issues, XSpace Houston will be equipped with a backup generator for additional security and peace of mind.

FINANCING

The project has a finalized debt finance package from a highly reputable group from Dallas and a final equity contribution from a Family Office based in Houston.

BREAK GROUND TARGET: Q4 2025

The Q4 2025 target date is based on fully permitted designs to begin the project and factors in a realistic but small lead time on mobilizing the General Contractor.

The project team expects all elements of the deal to come together quickly (presuming contingent requirements are met), and we anticipate XSpace Houston's sales will set new records for the area.

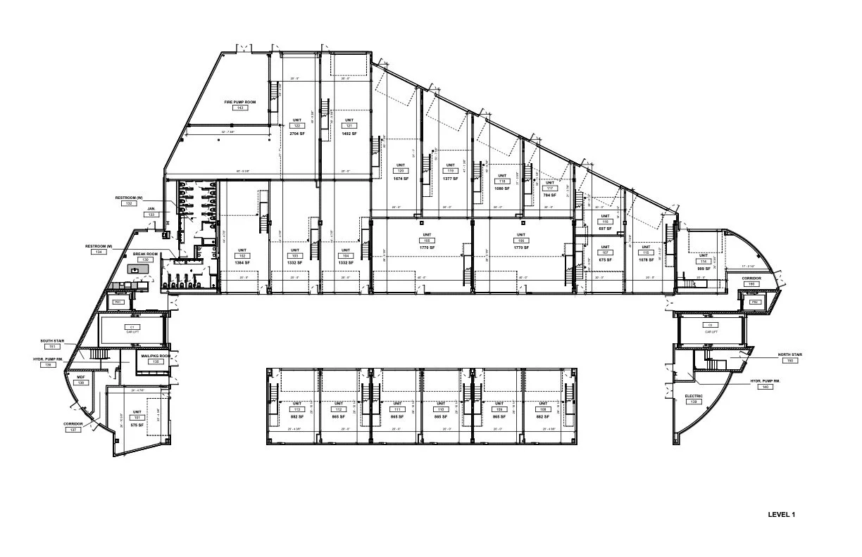
FLOORPLANS

Unit Upgrade Options

Want more information? Contact us at info@xspacegroup.com